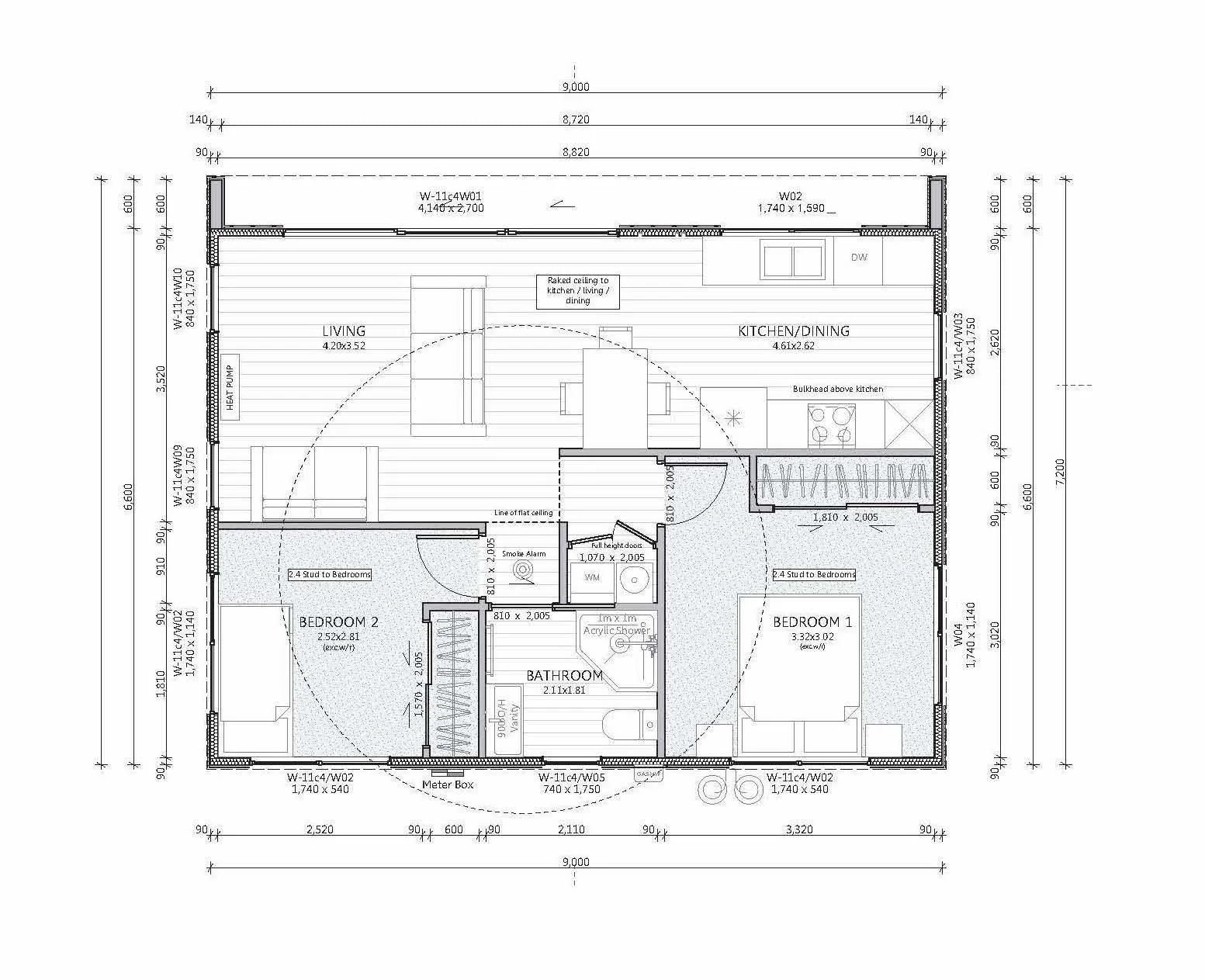
Te Puna Showhome
Floor Plan
Rebel Twin (customised)
Roofing
Mono-Pitch with 1m Wing Walls
Joinery Colour
Ironsand
Ceilings
Kitchen & Living: Racking
Bathroom & Bedrooms: 2.4m Flat
Cladding
Abodo Vulcan Cladding with Ebony Stain


















Rebel Twin – 3D Walkthrough
Floor Plan
Rebel Twin (customised)