Classic Falcon
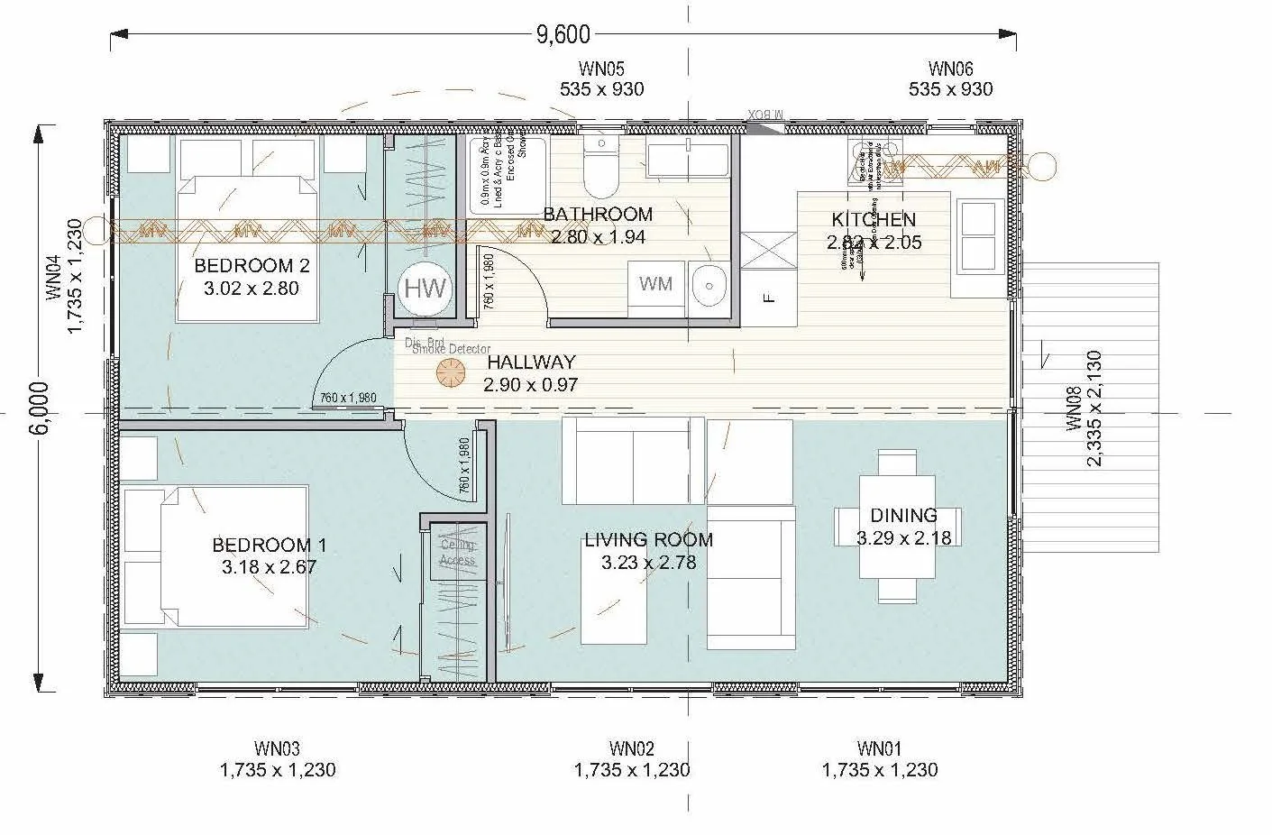
Floor Plan
Falcon
Roofing
Corrugated Iron (Flaxpod)
Joinery Colour
Flaxpod
Ceilings
2.4m Stud
Cladding
MittenBoard Bevelback (Colour: Frost)
“Thanks to The Dwelling Company for our beautiful new build. Absolutely fabulous company to work with . Murray our first contact, really knows his product and gave such useful advice. Mark the project manager was often on site and always provided an update and listening ear. Morgan and Rachel provided weekly updates on scheduling, had their finger on the pulse and were quick to answer any questions we had. Overall it was a very easy, hassle free build for us with plenty of options, completed to a high standard. We would recommend The Dwelling Company to all!”
– A Chapman













Floor Plan
Falcon