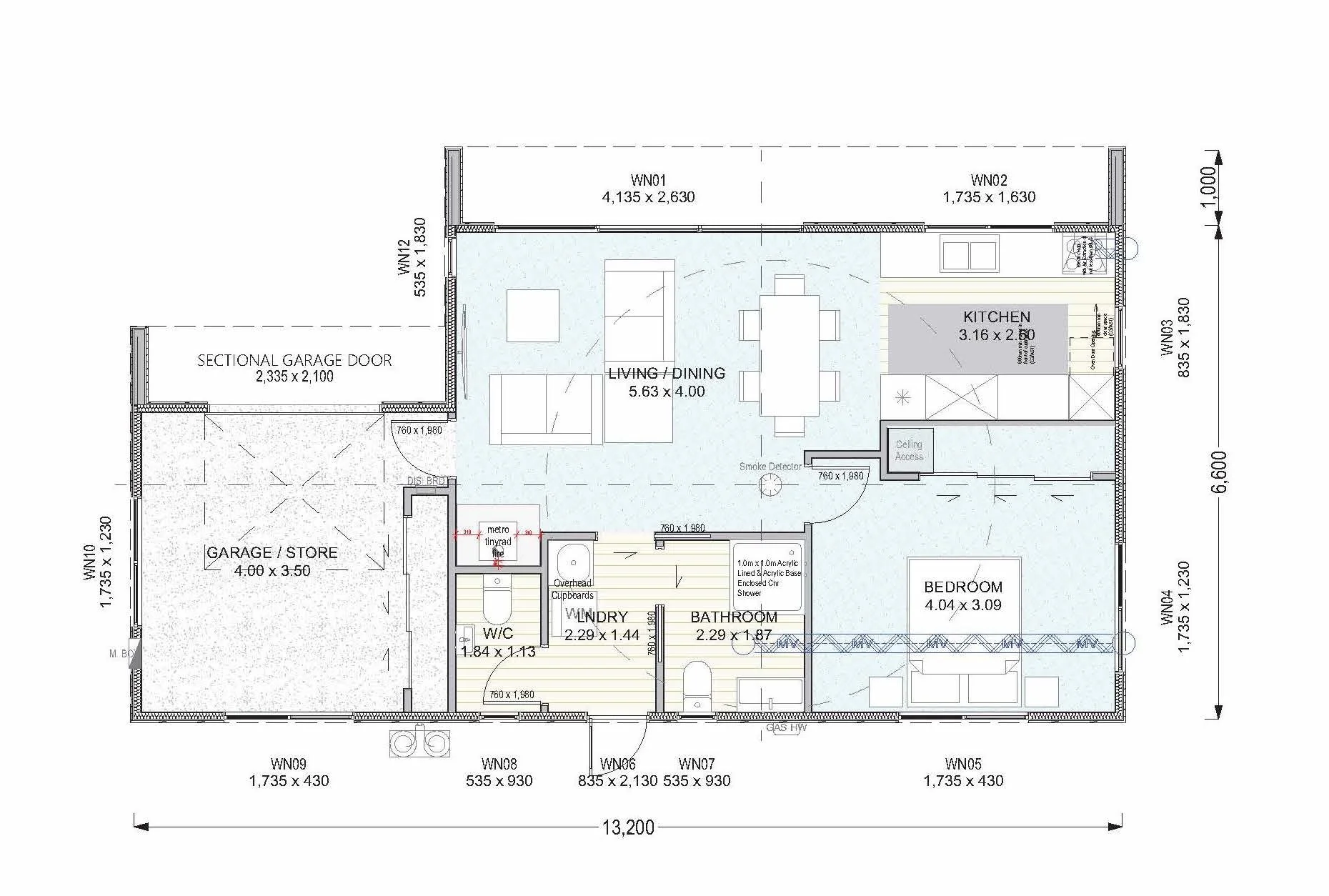
Majestic Mclarens
Floor Plan
Rebel Twin Plus (customised)
Roofing
Trimrib Coloursteel (Flaxpod)
Joinery Colour
Appliance White
Ceilings
2.4m Stud + Racking Ceilings in Living and Kitchen
Cladding
Trimrib Coloursteel (Colour: Flaxpod)
“Graham & I wish to thank you and all your team for a very pleasant experience with the build of our Minor Dwelling. This starts from our first step in the door to the finish which includes everyone from the management, designer, builder and all subcontractors. Everyone has been great to work with and nothing has been a bother to them when we have queried anything. We would recommend your company to anyone. Thanks.”
– G & T Jack














Floor Plan
Rebel Twin Plus (customised)