We build
Welcome to The Dwelling Co your family-owned construction company serving the Bay of Plenty area.
Specialising in Minor Dwellings, GRANNY FLATS and New Home builds we are experts in creating secondary dwellings for properties of any size.
In the Bay building a secondary dwelling presents an excellent investment return and offers an affordable housing solution for families of all ages.
Bring your design or collaborate with one of ours,
The Dwelling Co offers completed builds, shell-only options, or transportable units.
Talk to us today about the New Granny Flat rules
New Granny Flat Rules.
The granny flats building consent exemption allows small standalone dwellings up to 70 square metres in size to be built without a building consent if:
it has a simple design and meets the Building Code
homeowners notify their local council before they commence building and once it is completed
the work is carried out or supervised by licensed building professionals
all exemption conditions are met.
Click the link below for Exemption Guidelines:
https://www.building.govt.nz/assets/Uploads/projects-and-consents/granny-flats-exemption/granny-flats-exemption-guidance.pdf
Talk to us today about your project.
Recent Projects
Abodo Dream
Weathertex Wonder
Brick Beauty
Te Puna Showhome
About Us
We build customised,
quality Minor Dwellings and Homes.
We’re a BOP locally owned family business who are passionate about what we do and care about helping you!
Have you looked at increasing the value of an existing property by adding an additional home or Minor Dwelling for family members or as an investment?
Are you chasing the ultimate kiwi dream - that holiday home in your favourite holiday spot that the whole family can enjoy? You may be looking to help the kids into their first home?
We’ve developed a range of plans to suit all ages and stages. Either choose one of our standard plans, customise to suit your needs, or work with our Architectural team to create a home that’s perfect for you. We offer shell only or complete build options depending on your needs.
-

Morgan
MANAGING DIRECTOR
Morgan is the Managing Director of The Dwelling Co in Tauranga. Overseeing the operations and pricing side of the business, he wants to make sure you get the build you are after at a price that works for your budget! Morgan enjoys running and golfing (sometimes both at the same time, chasing wayward shots!)
-

Mark
PROJECT MANAGER
Our Project Manager Mark is our man on the ground making sure your build is completed on time and to a high standard! Mark has many years’ experience in the building industry and is an LBP. When he is not on a building site, Mark will be out enjoying sailing his beloved yacht.
-

Rachel
OFFICE MANAGER / SELECTIONS
Rachel manages our office and guides our clients through their selection process. She loves talking through design features you are considering, and is happy to support our clients in this process. Rachel is a busy mum of two kids, and is always keen on a coffee and a good book, when the kids allow!
-
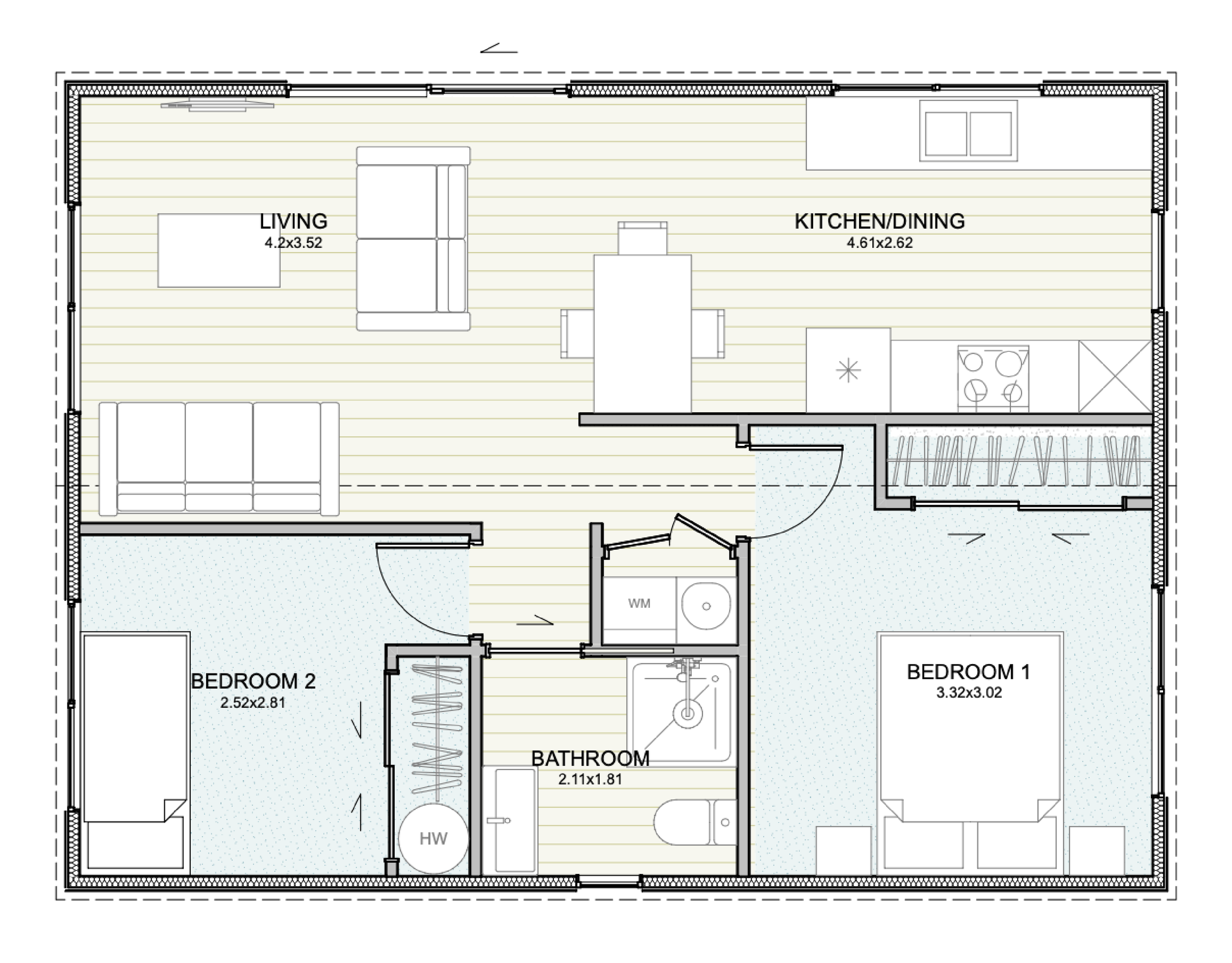
Customisable Floor Plans
We’ll work with you to customise any of our floor plans, to best suit your section and lifestyle.
1
BEDROOM
LITTLE WONDER
LITTLE DELIGHT
TUI
2
BEDROOMS
DOUBLE TROUBLE
DOUBLE TROUBLE PLUS
REBEL TWIN
3
BEDROOMS
HAHEI
TERRIFIC THREE
MURUWAI
4
BEDROOMS
BETHELLS BEACH
CAROLINE BAY
COOKS BEACH
“Our build with The Dwelling Co was awesome. The team made the process feel so easy and gave accurate timelines and information on what was next in our build and when we would likely move into our new home. The house is amazing and we love coming home every day as it’s perfect for us. The team were great with communication, whenever we had a question we would always receive a quick response which made us feel so comfortable. Thanks so much The Dwelling Co. Highly recommend the company if you’re after a new home at an affordable price.”
M Wealleans
Streamline Carports
We are the Tauranga / Bay of Plenty distributors for Streamline Carport Kitsets.
Streamline Carports delivers clean lines and modern architectural designs that truly complement your home.
Made with strong, beautiful, and sustainable PurlinDek® steel roofing, their proprietary designs provide unparalleled strength and rigidity. By stripping out unsightly fixtures and excess components, they have created a streamlined modular design that maximises form without compromising function.
Get in touch with our inquiry form below for more information.
Contact Us.
We would love to meet you!
Please get in touch to discuss your plans, questions, or to view our showhome.
[07] 552 5822
morgan@thedwellingco.co.nz
Open 8am-4pm, Monday-Friday.
Weekends by appointment.
4 Te Puna Road, Te Puna, Tauranga 3137
Located in Te Puna Village, at the top of the hill.